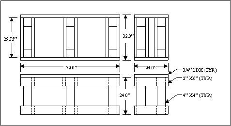
LIST OF MATERIALS
14- 2" X 6"X 29-3/4" Plates
4- 2" X 6"X 72"side plates
4- 2" X 6" X 24" side plates
1- 3/4"X 32"X 72"ply wood
1- 3/4"X 32"X 24"ply wood
Carpenters Wood Glue
3.0" Wood Screws (Frame)
1.5" Wood Screws (Top)
The First step is to draw up your plan and make
a list of your materials, With this in hand head to the local lumber yard
(Home Depot, Lowes..ect). I actually had them cut the lumber to the exact
size (See list of materials). It cost me less than $100.00 at Lowes.
The backbone of the bike table is the frame. First
assemble the five leg sub frames, They consist of two 2x6x29-3/4" (side
plates) and two 4x4x24" (legs) for each sub assembly. Set two 4x4's
on the floor and attach the first side plate to the legs using carpenters
glue and three inch wood screws. NOTE: Ensure the side plate is SQUARE to
the legs before they are screwerd on. Repeat this process to make five equal
sub assemblies.
Now attach the 2x6x72 inch perimeter rails to
three of the leg sub assemblies for the long table, and the 2x6x24 inch
rails make up the second (short) table. This is done by laying the lug sub
assemblies on their side and attaching side plates with glue and wood screws
to the leg assemblies on bothe table sections. Repeat this process for the
bottom rails.
Attach the pre-cut plywood to the top of both
frames with screws and wood glue. Also at this time install Tie down hooks
on each of the 4x4's. I suggest you pre-drill each hole to prevent splitting.
Having multiple tie-down hooks gives you several options places or options
to securing your bike. It would be a good idea to mount a 2x4 on the end
of the short bench to act as a safety stop.
You can build a ramp if you chose, just ensure
its long enough to prevent bottoming of the frame when ramping up onto the
table. I use aluminum ramps.
The thing I like most about this table is my bike
jack sits on it and by positioning the short table under either wheel ,once
raised, I can drop the wheel with out removing the fender. You can also
use wood blocks to elevate your bike, then remove the smaller table. Your
options are endless.
Well good luck with your new table and let me
know how you make out. I would like to thank the editors of "HOT BIKE"
for making this project a reality.

CLICK THE CHIK TO
RETURN TO MAIN PAGE
